شیر تکضرب روپیچ برنجی دسته گازی|خروسکی

تعریف و کاربرد
شیری است که به صورت یک چهارم دور باز و بسته میشود و از نوع شیر توپی یا به اصطلاح بال والو میباشد. این شیر برای قطع و وصل جریان اضطراری آب لوله کشی داخل ملک به کار میرود. امکان ارائه و تولید با دسته خروسکی و دسته گازی و همچنین تولید با اتصالات لولههای 5 لایه وجود دارد.
نامهای رایج
شیر تکضرب / شیر بال والو / شیر ساچمهای
محل نصب
داخل ملک درون حوضچه کنتور و یا تابلو انشعاب بعد از شیر یکطرفه
نکات کلیدی
درصورت استفاده از این نوع شیر بهتر است از شیر یکطرفه صافیدار استفاده شود.
دما و فشار کاری
دمای کاری: بین 2 تا 35 درجه سانتی گراد / فشار کاری: 16 اتمسفر (pn16)
شماره سریال
V-26121
جنس برنج
آببندی بال والو
ورودی توپیچ
خروجی روپیچ

قطعات و جنس آنها | ||||
نام قطعه | جنس | استانداردASTM | استانداردEN | سیمبول |
| بدنه | برنج | ASTM B455/C38500 ASTM B455/C38000 | EN12164/CW614N EN12164/CW617N | CuZn39Pb3 CuZn38Pb2 |
| ساچمه | ||||
| ساق | ||||
| واشر اورینگ ساق | لاستیک | NBR|EPDM | ||
| واشر ساچمه | تفلون | PFTE | ||
| دسته | آهنی-پلاستیکی-سرب خشک-آلومینیوم | |||

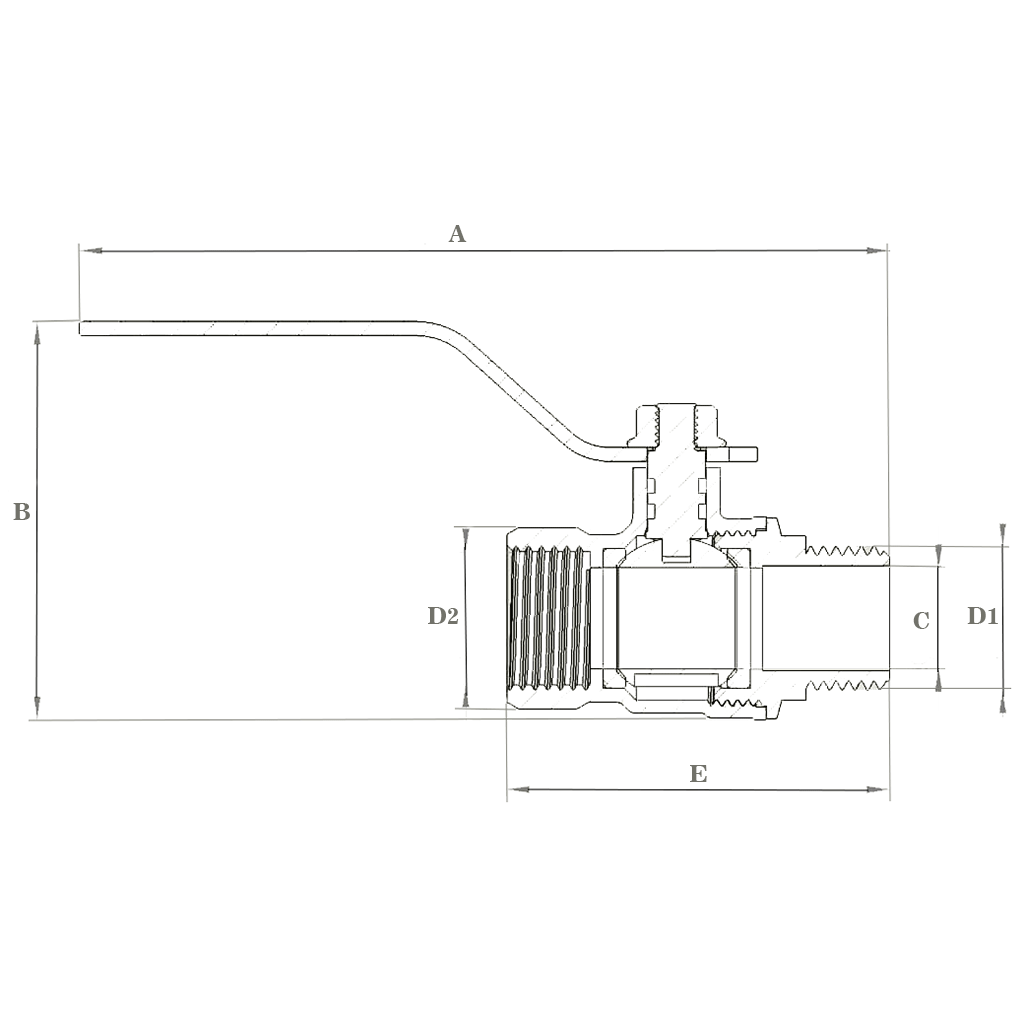
ابعاد بدنه | دنده ورودی و خروجی | ||||||
SizeInch | A(mm) | B(mm) | E(mm) | D1(mm) | D2(mm) | C(mm) | تعداد دنده بر اینچ |
| ½ | 110 | 57 | 55 | 20.9 | 18.6 | 15 | 14 |
| ¾ | 114 | 64 | 65 | 25.8 | 24.2 | 19 | 14 |
| 1 | 175 | 87 | 81 | 32.9 | 30.4 | 25 | 11 |